Welcome to S and B Detailing Ltd

 

At S and B Detailing Ltd, we pride ourselves on providing expert steelwork drawings/detailing, and design services with over 40 years of construction industry experience. Our commitment to precision and quality sets us apart in the industry.

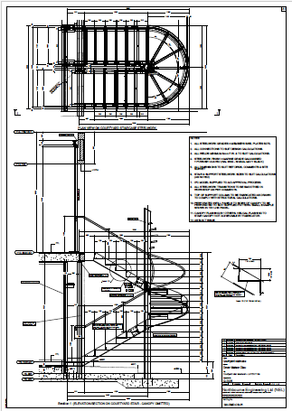
Services

Steelwork Drawings/Detailing

Accurate steelwork detailing/drawings for any steelwork project.

General arrangements/Ref models/Details.

Structural & architectural steelwork.

3D modelling & Detailing via Teklastructures software

Comprehensive steelwork detailing using the latest Teklastructures detailing & design software

40 years of construction industry experience

Design & Site surveys

Steelwork & steelwork connection

design & calculations.

Site surveys can be carried out throughout the UK.

Frequently Asked Questions

What sets S and B Detailing Ltd apart in the steelwork detailing industry?

S and B Detailing Ltd distinguishes itself with over 40 years of construction industry experience, delivering expert steelwork drawing and detailing services with a focus on precision and quality.

How can I request a quote for steelwork drawing or detailing services?

To request a quote for steelwork drawing or detailing services, simply email us at sandbdetailing@btinternet.com or call on 07708879090

What types of steel structures can S and B Detailing Ltd assist with?

S and B Detailing Ltd can assist with a wide range of steel structures, including commercial buildings, industrial facilities, bridges, staircases and more.

Contact us to discuss your specific project needs:

Email: sandbdetailing@btinternet.com

Phone: 07708879090

“I was impressed with the attention to detail and professionalism displayed by S and B Detailing Ltd.

Their expertise in steelwork detailing is excellent, and I highly recommend their services.”

[Ian Roberts]

Contact us

For expert steelwork drawing, structural detailing, and design consultation services, contact us today!

Email: sandbdetailing@btinternet.com

Phone: 07708 879090

Location

S and B Detailing Ltd
Wye, Ashford, Kent, TN25 5ES, United Kingdom

About us

S and B Detailing Ltd is a leading provider of steelwork drawing, detailing, and design services in Wye, Ashford, Kent, with over 40 years of construction industry experience. Our dedicated team of professionals are committed to delivering precision, quality, and innovation in every project we undertake.